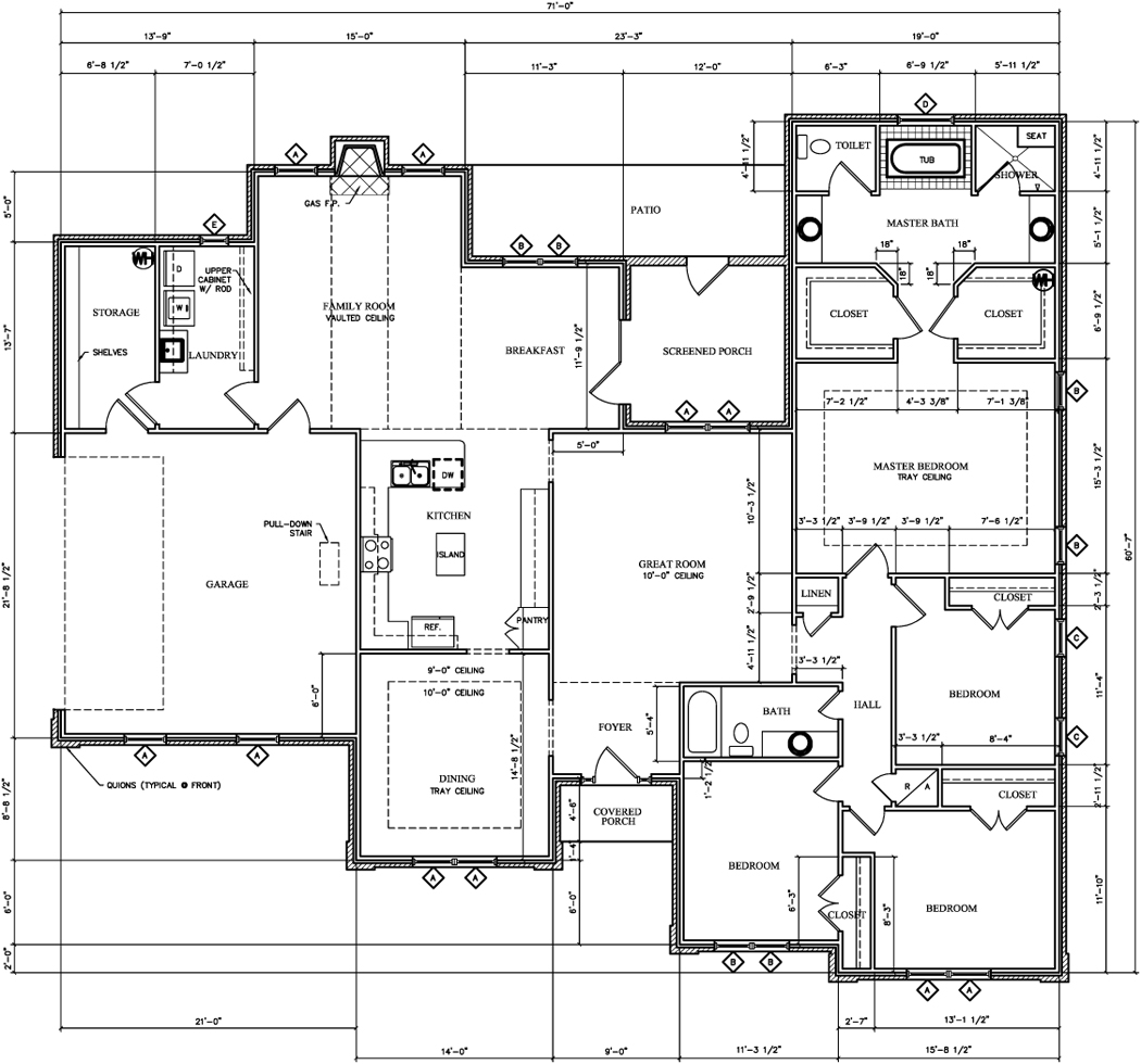
Main Floor Plan