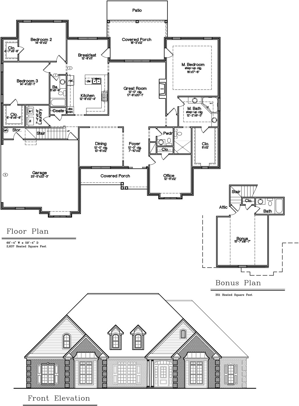
Prairie Waters Floor Plan